AURA ANDINA

EL PROYECTO

Departamentos de diseño patagónico moderno, donde la madera, la piedra y otros materiales se combinan con líneas limpias, generando espacios llenos de luz natural y confort contemporáneo. Cada unidad fue pensada para ofrecer armonía, vistas y calidez. A ser construido con materiales de excelente calidad y los mejores servicios como ser piso radiante por agua, carpinterías de PVC DVH, cocinas equipadas, sistema de agua presurizado, instalación para internet de alta velocidad, entre muchos otros.

CARACTERÍSTICAS

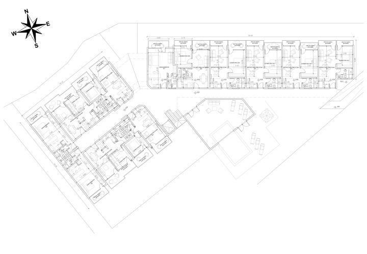
El complejo consta de subsuelo de cocheras, PB + 3 pisos, con 38 departamentos de diferentes medidas y distribución de 1, 2 y 3 ambientes con balcones aterrazados de deck con increíbles vistas a la montaña. Cocheras subterráneas desde donde se puede acceder a las unidades. SUM con piscina “in-out” climatizada integrada, sector para parrillas y laundry. De fácil acceso todo el año, emplazados en el medio del bosque, con una vista excepcional al cordón del Bayo. Cerca de todo y apartado del caos turístico de temporada alta.

LA EXPERIENCIA

Ya sea como tu lugar en la montaña, una inversión de alto valor turístico o un destino para reconectar con vos mismo, este es un lugar que ofrece más que metros cuadrados: ofrece una sensación.

Angostura no es solo un destino: es un refugio natural entre lago y montaña, donde el tiempo parece moverse distinto.

CONCEPTO

Es un refugio contemporáneo en uno de los lugares más mágicos del sur argentino.

No se trata solo de construir. Se trata de habitar con sentido. De crear un espacio moderno, cómodo y bello, que dialogue con el entorno en lugar de imponerse.

ESTILO

Innovamos combinando materiales tradicionales y otros de ultima generación, sin perder calidez, manteniendo el estilo patagónico, generando más confort, pero dándole un toque distintivo y moderno, que no pase fácilmente “de moda” y apuntando al menor mantenimiento posible.

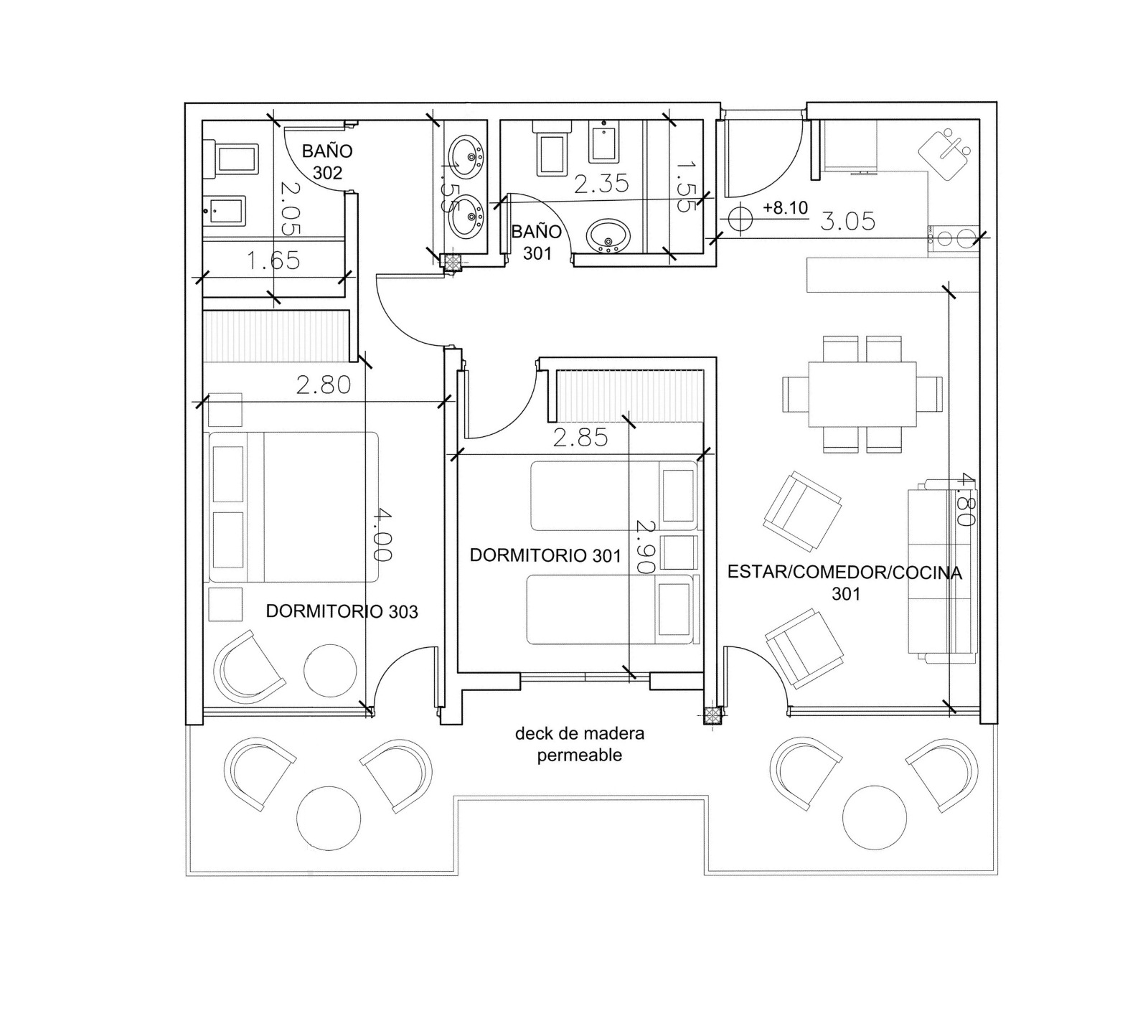
LOS DEPARTAMENTOS

Monoambiente

Desde 35 m2 cub + balcon

2 Ambientes

Desde 45 m2 cub + balcon

3 Ambientes

65 m2 cub + balcon

Dúplex

Desde 59 m2 cub + balcon

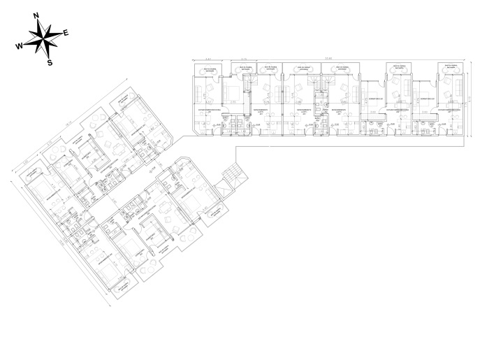
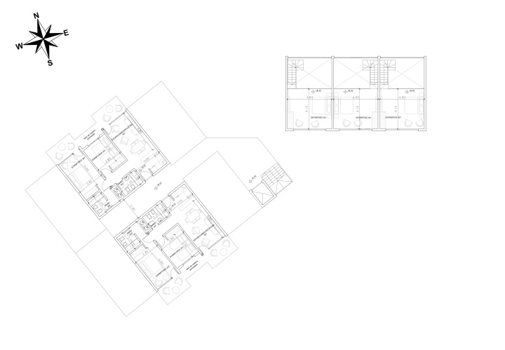
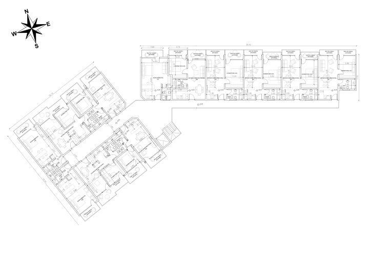
PLANTAS

Subsuelo

Planta Baja

Primer Piso

Segundo Piso

Tercer Piso

UNA BUENA INVERSION

Invertir en Villa La Angostura no solo significa apostar por un entorno natural privilegiado, sino también por un destino que ofrece una fuerte actividad turística durante las cuatro estaciones, lo que garantiza una ocupación sostenida y excelentes oportunidades de rentabilidad inmobiliaria.

El verano patagónico convierte a Villa La Angostura en un paraíso natural ideal para el ecoturismo y la aventura.

  • Actividades destacadas: Senderismo, trekking en los cerros Belvedere e Inacayal, mountain bike, paseos en kayak por el Lago Nahuel Huapi y el Correntoso, pesca con mosca, excursiones en velero y días de playa en Bahía Manzano o Lago Espejo.
  • Oportunidad de inversión: La alta demanda de alquileres turísticos por familias y viajeros en busca de naturaleza genera excelentes ingresos estacionales.

Una estación tranquila, ideal para escapadas de fin de semana y turismo de bienestar.

  • Actividades destacadas: Turismo contemplativo, fotografía de paisajes otoñales, gastronomía regional, avistaje de aves y descanso en cabañas o lodges.
  • Oportunidad de inversión: Crecimiento del turismo de pareja y retiro, ideal para emprendimientos boutique o cabañas de alta gama.

El Cerro Bayo, centro de esquí boutique, transforma la villa en uno de los destinos invernales más exclusivos del país.

  • Actividades destacadas: Esquí alpino y de fondo, snowboard, paseos en raquetas, gastronomía en paradores de montaña, after-ski y turismo de nieve.
  • Oportunidad de inversión: La temporada alta de invierno es un motor económico clave, con ocupación plena en alojamientos y alta rentabilidad en propiedades cercanas al cerro.

La villa se llena de color y temperaturas agradables, ideal para el turismo activo y deportivo.

  • Actividades destacadas: Caminatas en bosques de arrayanes, cicloturismo, navegación, excursiones a los miradores y eventos culturales o deportivos.
  • Oportunidad de inversión: Temporada creciente para el turismo internacional y de escapadas, ideal para alquileres temporarios.

Villa La Angostura no es solo un lugar para vacacionar: es un destino de cuatro estaciones que garantiza actividad constante, calidad de vida y una inversión inmobiliaria sólida, rentable y con potencial de crecimiento a largo plazo.

GALERIA

UBICACION & CONTACTO

Contactanos

/1000 caracteres

WhatsApp Instagram